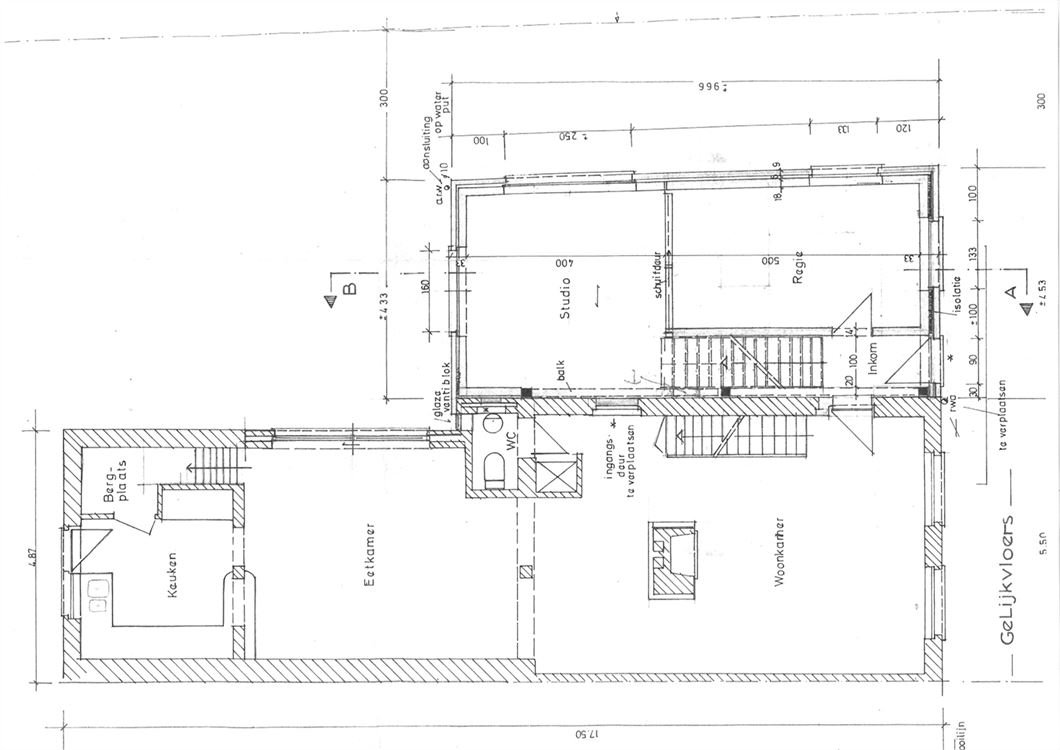
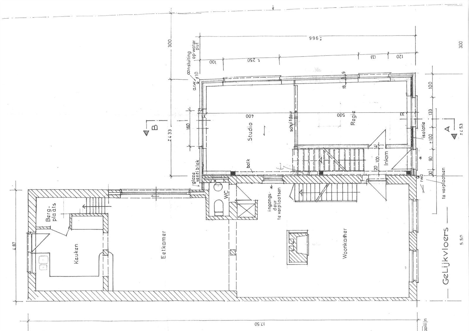
Century 21 Immo Dewaele est ravi de vous présenter cette agréable maison familiale avec possibilité de studio indépendant, style maison kangourou. Cette grande propriété est composée de 5 chambres (+2 potentielles), salle de bains et douche indépendante. Cette maison lumineuse et spacieuse a été rénovée entièrement et agrandie au début des années 2000. Avec son terrain de 24 ares, véritable havre de paix, vous vous sentirez à la campagne tout en étant aux portes de la ville. Possibilité de garer 4 voitures devant la maison. PEB D 330 kWh/m².an.