House IN NIVELLES (1400)

319.000 €

General

Price
:
319.000 €
Rateable
:
716 €
Number of Bedrooms
:
3 bdr
Number of Bathrooms
:
1
Address
:
Rue Auguste Lévéque 11, 1400 NIVELLES
Total Area
:
203 m²
Living Area
:
29 m²
Ground Area
:
370 m²
Front width
:
5 m
Plot width
:
5 m
Availability
:
Onact
Construction Year
:
1932

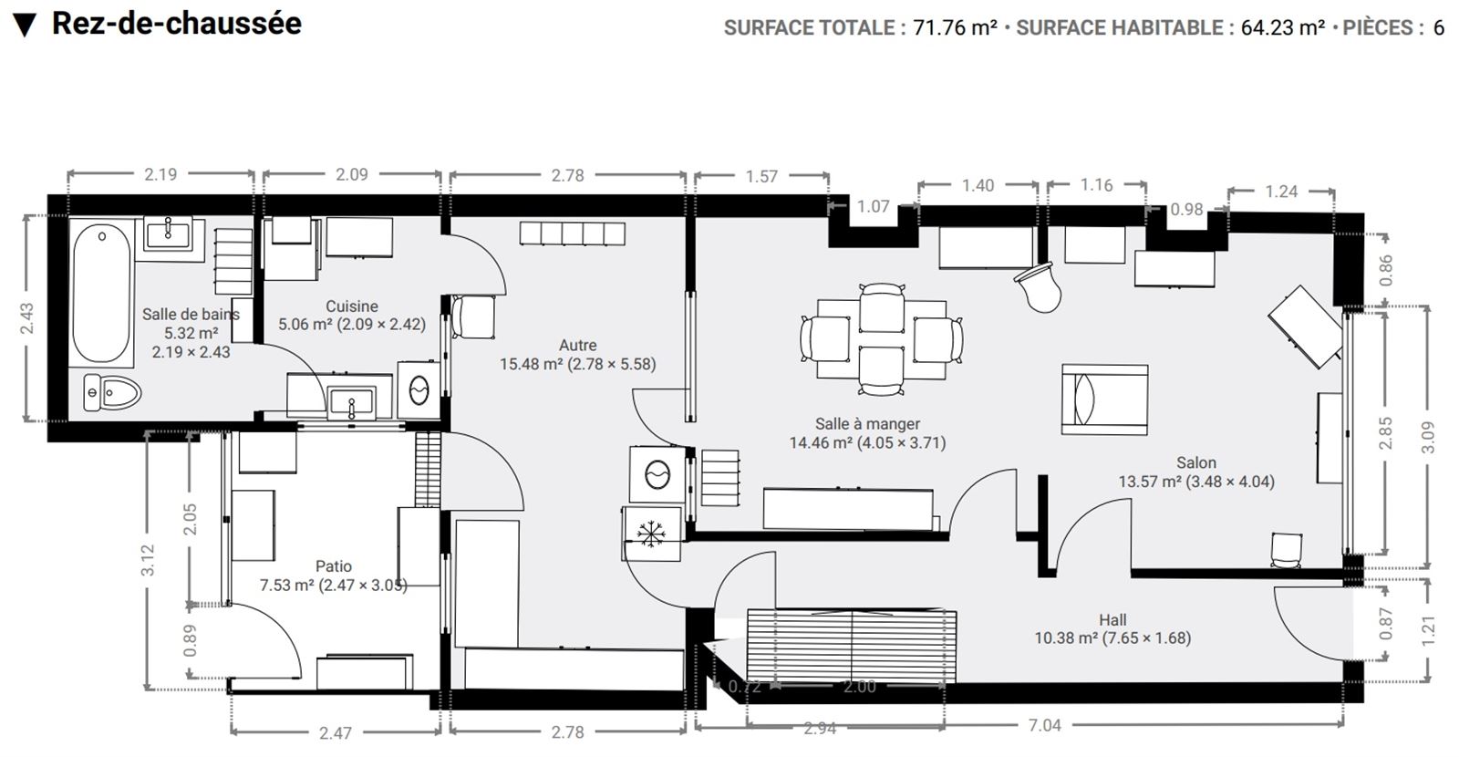
Description

CENTURY 21 Immo Dewaele is pleased to present this 3-bedroom house, located just a few steps from the station. It comprises a living room and dining room of over 28 m², extended by a 15 m² multi-purpose area leading to the kitchen and bathroom. Upstairs, you'll find 3 bedrooms (15.1 m², 10.1 m² and 9.4 m²). The second floor offers a large, bright 38 m² room with potential for further conversion, and access to the 26 m² attic. Renovation work required. Numerous conversion possibilities. PEB : E - 415 kWh/m2.an.

Planning information

Preemption
:
Not applicable
Construction Permit
:
Yes
Summons Issued
:
No judicial recovery measure or administrative measure
Allotment Permit
:
Not applicable
Destination
:
Living area
CO2 emission
:
79 CO2/m�/year
E spec
:
415 kWh/m².year
Unique code
:
20260211013762
Heritages
:
No

Confort

Heating
:
Gaz
Has gas
:
Yes
Has water
:
Yes
Kitchen name
:
Semi-equiped
Window glazing
:
Part double, part single
Window frame
:
alu
Usage
:
Habitation
Architecture
:
Style 1930

Rooms

Cellar
:
3,9 m²
Cellar
:
14,2 m²
Cellar
:
13,9 m²
Lobby
:
4,5 m²
Sitting room
:
13,6 m²
Living room
:
15,1 m²
Kitchen
:
4,7 m²
Multipurpose room
:
15,3 m²
Bathroom
:
4,4 m²
Veranda
:
7,6 m²
Lobby
:
10,0 m²
Bedroom
:
9,4 m²
Bedroom
:
10,1 m²
Bedroom
:
15,1 m²
Nighthall
:
7,3 m²
Attic
:
38,1 m²
Attic
:
26,3 m²

Charges

Google map

Enlarge the map

Street view

We use cookies

We use cookies on our website. Some of them are essential for the operation of the site, while others help us to improve this site and the user experience (tracking cookies). You can decide for yourself whether you want to allow cookies or not. Please note that if you reject them, you may not be able to use all the functionalities of the site.